平面布局

粤海校区北馆

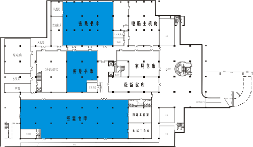
北馆地下室平面图

北馆一层平面图

北馆二层平面图

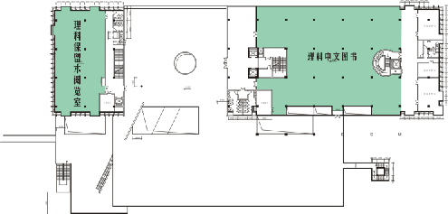
北馆三层平面图

北馆四层平面图

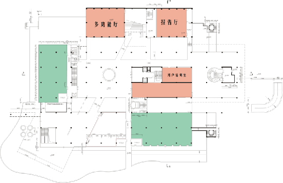
北馆五层平面图

北馆六层平面图

粤海校区南馆

南馆地下室平面图

南馆一层平面图

南馆二层平面图

南馆三层平面图

南馆四层平面图

南馆五层平面图

移动设备访问